- Status
- Completed 2022
- Location
- Long Bay, Providenciales, Turks and Caicos Islands
- Size
- 5896 sqft GIA
- Specification
- 6 beds, 6.5 baths
- Photography
- Henry Woide / Jack Hobhouse
Bay HouseA house for dual-aspect living
Three bays set within undulating topography and dense trees

Bay House’s long, narrow plot changes in nature significantly along its length. When approached from the road, the land sits well below the apex of the dune, almost completely engulfed by indigenous vegetation. Then, the terrain gently lifts and falls in two undulating crests as it nears the water, the vegetation feathering out into coral-rock boulders that transition gradually to soft white sand as the beach comes into frame.
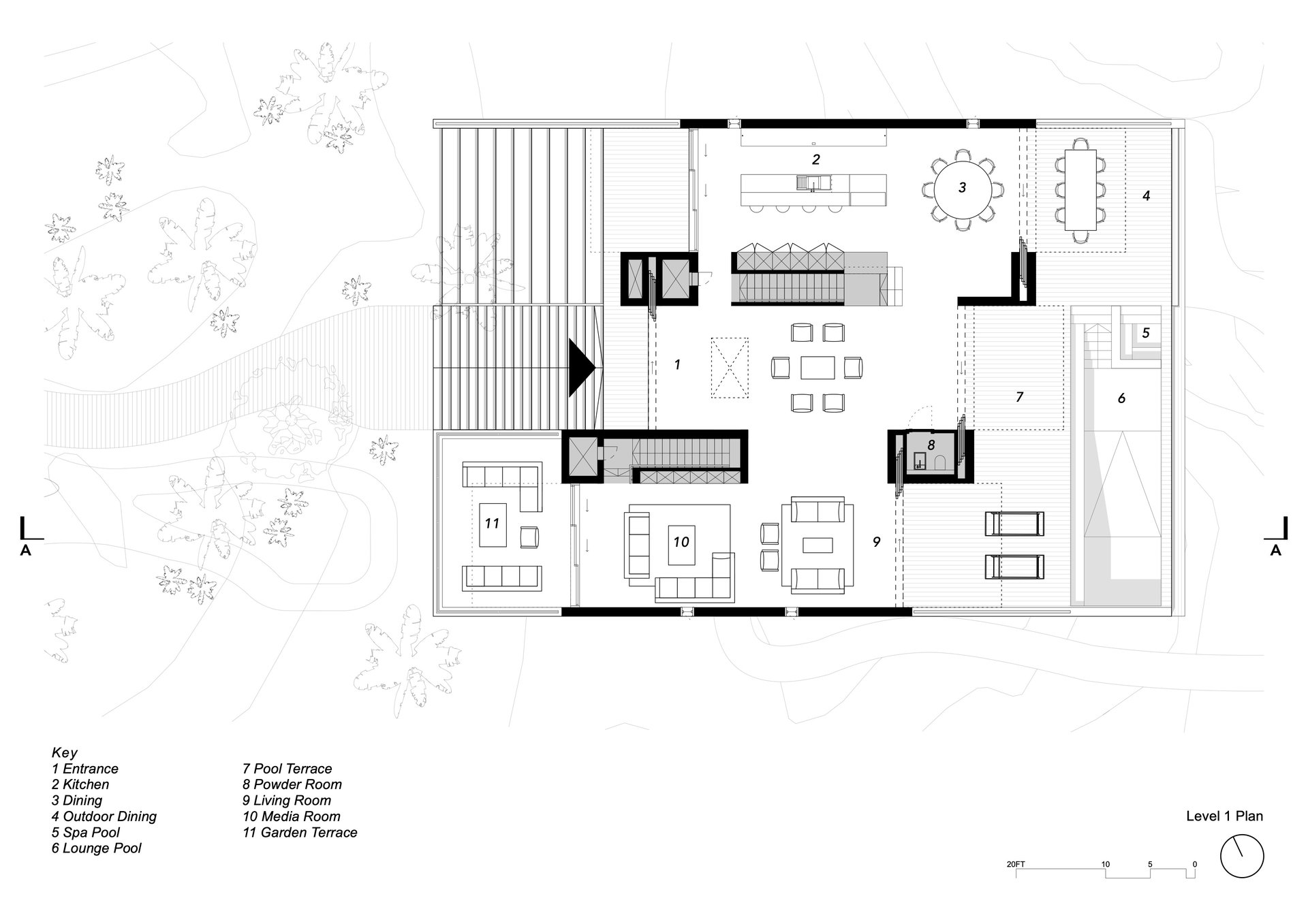
The house responds to this topography through a three-bay design, staggered in plan to nestle sensitively behind the dune landscape whilst capturing the best views of water and terrain. These three glazed bays sit between two cedar shingle–clad spines that contain the circulation spaces and secondary accommodation of bathrooms, storage, and vertical A/C ducts. A set of wide entrance steps takes visitors up and over the dune
into a spectacular central living area that gives expansive views out to the ocean. Kitchen, living, and dining areas interconnect on this level and lead out onto the pool terraces. At the top level, four bedrooms step to give privacy and shelter, their operable windows allowing precise natural ventilation control. Each of the bedrooms has a large shaded balcony, providing maximum sun protection and a dramatic framing of views across the bay.





































